关闭
关注微信公众号
下载APP
我要爆料
首页顶部广告

“沉睡”多年!临沂北城一期3大地块,规划大调整!

2025-11-28 09:13  来源: 琅琊新闻网微信综合

沉寂多年,终迎巨变

临沂北城新区一期3个“沉睡”地块

规划调整

640.jpg

640.png

资料图 来源于百度街景

近日

临沂市自然资源和规划局发布

北城新区一期A1-1地块

北城新区一期A1-2地块

北城新区一期A2地块

规划条件变更公示

详情如下


北城新区一期A1-1地块

规划条件变更公示

640 (1).jpg

建设单位

临沂北城置业有限公司


项目内容

北城新区一期A1-1地块规划条件变更


位置

沂蒙北路与成都路交会处东南


用地面积

9.7922公顷


用地性质

商住用地

640 (1).png

为盘活土地资产,根据建设用地规划指标调整有关规定要求,临沂北城置业有限公司申请A1-1地块拟由商务金融业用地变更为商住用地(商住比70%:30%,商业为商务金融用地,住宅为二类城镇住宅用地),容积率由不大于4.0变更为大于1.2且不大于3.0,建筑密度拟由不大于40%变更为不大于30%,绿地率由不小于25%调整为不小于30%。建筑退线、停车配建、公共服务设施配套等要求按现行规范、规定执行。

640 (2).png

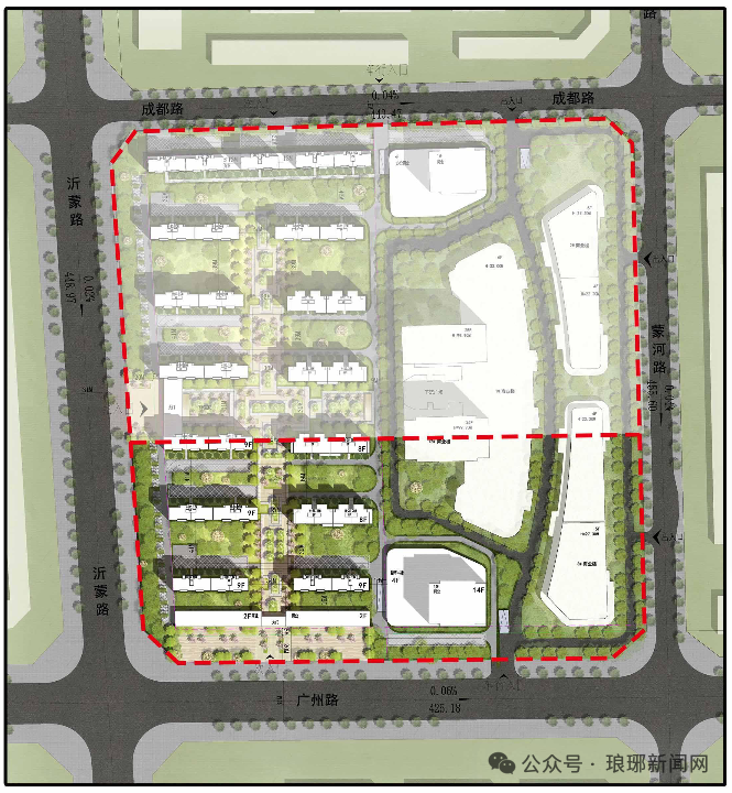
原规划总平面图

640 (3).png

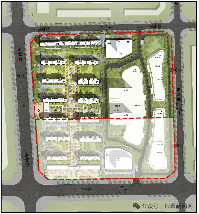
拟规划总平面图

公示期 2025年11月26日至2025年12月4日。利害关系人如有异议可在公示期内提出听证申请并说明理由,逾期视为无异议。


北城新区一期A1-2地块

规划条件变更公示

640 (2).jpg

建设单位

临沂北城置业有限公司


项目内容

北城新区一期A1-2地块规划条件变更


位置

沂蒙北路与广州路交会处东北


用地面积

6.0126公顷


用地性质

商住用地

640 (4).png

现状图

为盘活土地资产,根据建设用地规划指标调整有关规定要求,临沂北城置业有限公司申请A1-2地块拟由商务金融业用地变更为商住用地(商住比70%:30%,商业为商务金融用地,住宅为二类城镇住宅用地),容积率由不大于4.0变更为大于1.2且不大于2.5,建筑密度拟由不大于40%变更为不大于30%,绿地率由不小于25%调整为不小于30%。建筑退线、停车配建、公共服务设施配套等要求按现行规范、规定执行。

640 (5).png

原规划总平面图

640 (6).png

拟规划总平面图

公示期 2025年11月26日至2025年12月4日。利害关系人如有异议可在公示期内提出听证申请并说明理由,逾期视为无异议。


北城新区一期A2地块

规划条件变更公示

640 (3).jpg

建设单位

临沂北城置业有限公司


项目内容

北城新区一期A2地块规划条件变更


位置

沂蒙北路与广州路交会处东南


用地面积

3.7966公顷


用地性质

商住用地

640 (7).png

现状图

为盘活土地资产,根据建设用地规划指标调整有关规定要求,临沂北城置业有限公司申请A2地块拟由商务金融业用地变更为商住用地(商住比10%:90%,商业为零售商业用地,住宅为二类城镇住宅用地),容积率由不大于4.0变更为大于1.2且不大于2.0,建筑密度由不大于40%变更为不大于28%,绿地率由不小于25%调整为不小于35%,建筑高度由地上不大于100米变更为地上不大于80米。建筑退线、停车配建、公共服务设施配套等要求按现行规范、规定执行。


640 (8).png

拟规划总平面图

公示期 2025年11月26日至2025年12月4日。利害关系人如有异议可在公示期内提出听证申请并说明理由,逾期视为无异议。